Design
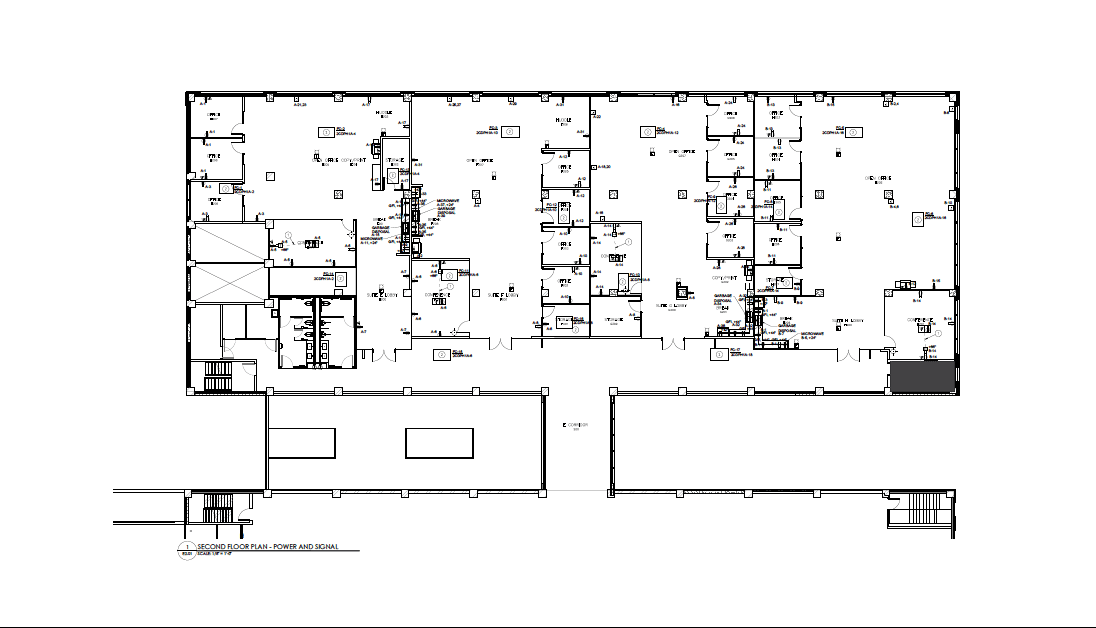
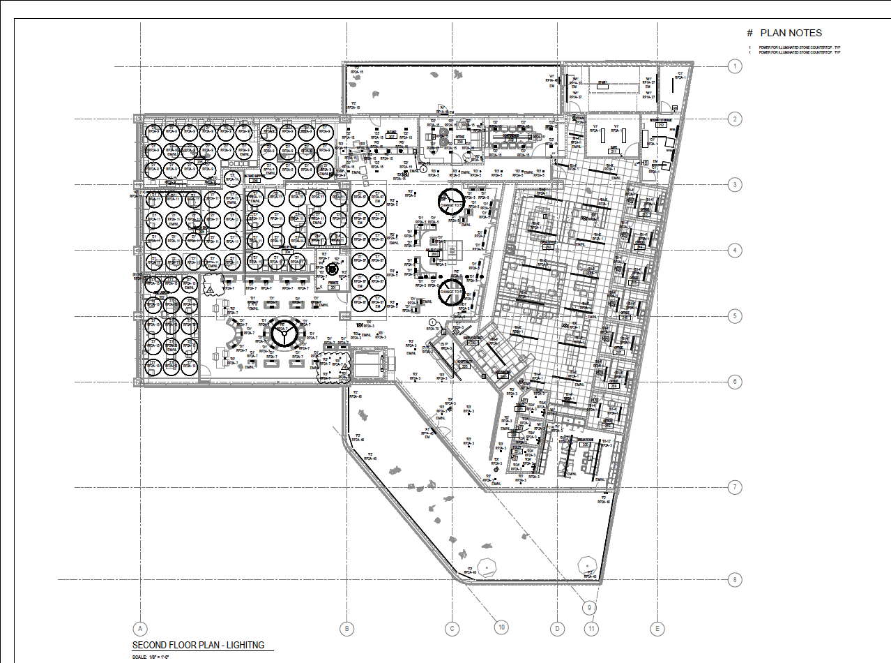
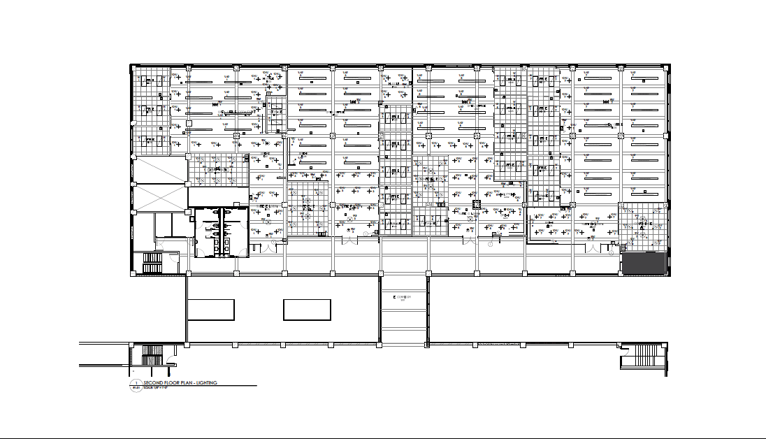
Our Design Division plays a key role in delivering efficient, cost-effective, and constructible electrical solutions from the earliest stages of a project. Whether partnering through design-build or design assist, our team brings deep experience, strong communication, and a collaborative mindset that helps owners, architects, engineers, and contractors bring ideas to life with clarity and confidence.
Design-Build
Our Design‑Build approach delivers a seamless, single‑source solution from concept through completion. By unifying design and construction under one team, we streamline communication, accelerate timelines, and ensure every decision aligns with your project’s goals. Leveraging field‑tested expertise and real‑time cost evaluation, we create electrical systems that meet performance requirements while controlling costs, reducing change orders, and eliminating unnecessary third‑party design fees. We partner closely with stakeholders to ensure code compliance, schedule certainty, and long‑term maintainability – delivering a system that performs reliably and adds value from day one.
Design Assist
Our Philosophy
We believe the best projects come from strong relationships built on transparency, accountability, and expertise. Our design team focuses on cost-effective solutions that never compromise quality – and we stay engaged through every phase to ensure the final product reflects the intent, performance, and long-term needs of the client.
Monday - Friday: 7:00am-5:00pm
24-Hour Emergency Service Available at All Locations (Commercial and Industrial)
Avon
173 S County Rd 525 E
Avon, IN 46123
Phone: (317) 718-0100
Fax: (317) 718-0101
Lafayette
Bloomington
Kokomo























